cad快速看图怎样转换为cad(cad快速看图如何转换t3)

cad快速看图怎样转换为cad(cad快速看图如何转换t3)

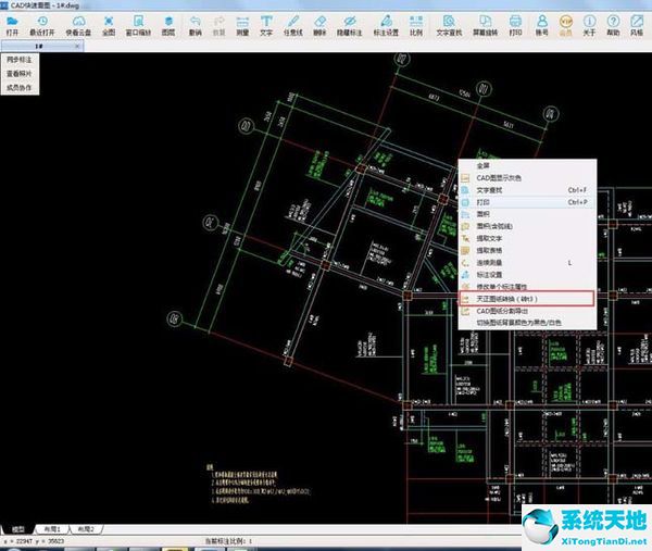
我们需要使用CAD快速查看图纸并打开需要传输到t3的图纸。点击VIP按钮中的“天正图纸转换(至t3)”按钮。或者在图形上单击鼠标右键打开菜单,然后选择t3。

cad快速看图怎样转换为cad(cad快速看图如何转换t3) cad快速看图怎样转换为cad(cad快速看图如何转换t3)然后,单击后会出现一个对话框,选择t3转换后的保存位置、名称和版本,然后单击保存。

cad快速看图怎样转换为cad(cad快速看图如何转换t3)此时几秒钟后,表示转换成功。

cad快速看图怎样转换为cad(cad快速看图如何转换t3)在最后一步中,我们可以在保存的位置找到转换后的图形。

根据上面介绍的CAD快速绘图转换t3格式的详细过程,小伙伴们应该自己尝试一下!

免责声明:本站所有文章内容,图片,视频等均是来源于用户投稿和互联网及文摘转载整编而成,不代表本站观点,不承担相关法律责任。其著作权各归其原作者或其出版社所有。如发现本站有涉嫌抄袭侵权/违法违规的内容,侵犯到您的权益,请在线联系站长,一经查实,本站将立刻删除。

本文来自网络,若有侵权,请联系删除,如若转载,请注明出处:https://www.freetrip88.com/baike/370698.html

      
上一篇 2024-02-09
相关推荐