cad快速看图怎么量尺寸(cad看图测量快捷键)

cad快速看图怎么量尺寸(cad看图测量快捷键)

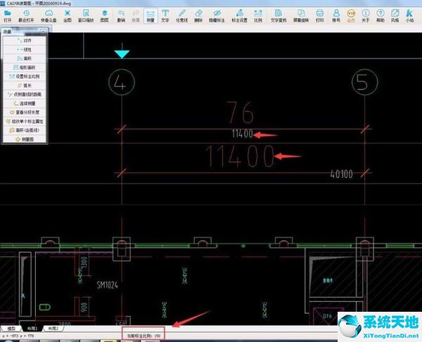
当我们第一次在布局图或详图中测量时,会遇到测量结果与标注不一致的情况,如图所示。单击工具栏中的“调整比例”按钮调整测量比例。

cad快速看图怎么量尺寸(cad看图测量快捷键)然后我们按照鼠标旁边的提示选择已知长度的线段的端点。

cad快速看图怎么量尺寸(cad看图测量快捷键)弹出一个对话框,填写实际距离(在图纸上标记),然后单击“确定”。

cad快速看图怎么量尺寸(cad看图测量快捷键)此时对刚才的线段重新测量,发现测量结果与标记一致。通过观察软件下的当前刻度,可以发现刻度发生了变化。

cad快速看图怎么量尺寸(cad看图测量快捷键)相信大家已经看完了上面提到的CAD快速出图设置测量比例的具体操作流程,大家应该都学会了吧!

免责声明:本站所有文章内容,图片,视频等均是来源于用户投稿和互联网及文摘转载整编而成,不代表本站观点,不承担相关法律责任。其著作权各归其原作者或其出版社所有。如发现本站有涉嫌抄袭侵权/违法违规的内容,侵犯到您的权益,请在线联系站长,一经查实,本站将立刻删除。

本文来自网络,若有侵权,请联系删除,如若转载,请注明出处:https://www.freetrip88.com/baike/370702.html

      
上一篇 2024-02-09
相关推荐